Skip To Content

1730 Kimberly Road

Twin Falls, ID 83301
  • $97,500
  • STATUS: Active
  • ON SITE: 184 Days
  • MLS #: 98946592
UPDATED: 198 min ago
$97,500
  • 0
    BEDS
  • 1.15
    ACRES
  • 0
    BATHS
  • 0
    1/2 BATHS
  • 7,500
    SQFT
  • $13
    $/SQFT
Neighborhood:
Type:
Commercial-Lease
Built:
1976
County:

School Ratings & Info

Intermountain MLS logoCourtesy of Gem State Realty Inc at 208-734-0400.

Description

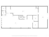
Large 7,500 square foot metal building with metal roof. Approximately 3300 square feet of finished showroom which includes 2 private showrooms. 2 private offices and 1 open office area. Remaining area is store room with concrete floors and overhead roll-up door. The building is heated with 2 gas furnaces (1 new), and has 2 new air conditioners. There are 21 paved parking spaces in front of the building for customers, while 20+ paved parking spots in back for employees/ company vehicles in a fenced area. The lease is for the west 94 feet of the lot. $13 per sqft per year NNN for a 5 year term



Intermountain MLS logo© 2025 Intermountain Multiple Listing Service, Inc. (IMLS). Real estate listings held by brokerage firms other than Moscow Realty are marked with the IMLS IDX logo and information about them includes the name of the listing brokerage. Information provided by IMLS is deemed reliable but not guaranteed. IDX information is provided exclusively for consumers' personal, non-commercial use and it may not be used for any purpose other than to identify prospective properties consumers may be interested in purchasing. IMLS does not assume any liability for missing or inaccurate data. Data last updated 2025-11-10T00:10:17.46.
www.moscowrealty.com/homes/163593543
Print Image

1730 Kimberly Road Twin Falls, ID 83301

  • Price: $97,500
  • Status: Active
  • On Site: 184 Days
  • Updated: 198 min ago
  • MLS #: 98946592
0
Beds
0
Baths
0
½ Baths
1.15
Acres
7,500
SQFT
$13
$/SQFT
1976
Built
Neighborhood:
Twin Falls - 2015
County:
Twin Falls
Area:
Twin Falls - 2015
Property Description
Large 7,500 square foot metal building with metal roof. Approximately 3300 square feet of finished showroom which includes 2 private showrooms. 2 private offices and 1 open office area. Remaining area is store room with concrete floors and overhead roll-up door. The building is heated with 2 gas furnaces (1 new), and has 2 new air conditioners. There are 21 paved parking spaces in front of the building for customers, while 20+ paved parking spots in back for employees/ company vehicles in a fenced area. The lease is for the west 94 feet of the lot. $13 per sqft per year NNN for a 5 year term
Exterior Features

Construction Materials Metal Siding Fencing PartialFenced Lot Features 1 - 4.99 Acres Parking Features 21 - 50 SpacesTrailer Parking Parking Total 41 Roof Metal

Interior Features

Above Grade Finished Area Units Square Feet Below Grade Finished Area Units Square Feet Building Area Total 7500 Cooling Central Air Cooling YN Yes Door Features Overhead DoorsGrade Level Door Flooring Concrete Heating Forced AirNatural Gas Heating YN Yes

Property Features

Building Features Lighting Business Type Commercial Land Lease YN No Lease Term 60 Tax Legal Description Twin Falls Surtees Subd E1/2 Exc N 22' Rd Lot 10 (22-10-17 Nw) Twin Falls County Utilities Sewer ConnectedNatural Gas AvailablePropane Water Source City Service

Intermountain MLS logoCourtesy of Gem State Realty Inc: 208-734-0400.


Intermountain MLS logo© 2025 Intermountain Multiple Listing Service, Inc. (IMLS). Real estate listings held by brokerage firms other than Moscow Realty are marked with the IMLS IDX logo and information about them includes the name of the listing brokerage. Information provided by IMLS is deemed reliable but not guaranteed. IDX information is provided exclusively for consumers' personal, non-commercial use and it may not be used for any purpose other than to identify prospective properties consumers may be interested in purchasing. IMLS does not assume any liability for missing or inaccurate data. Data last updated 2025-11-10T00:10:17.46.
 
https://bt-photos.global.ssl.fastly.net/imls/1280_boomver_1_98946592-2.jpg https://bt-photos.global.ssl.fastly.net/imls/1280_boomver_1_98946592-2.jpg https://bt-photos.global.ssl.fastly.net/imls/1280_boomver_1_98946592-2.jpg
Logo
Moscow Realty
201 East 3rd Street
Moscow ID, 83843
Intermountain MLS logoCourtesy of Gem State Realty Inc at 208-734-0400.